LOGEMENT INDIVIDUEL

PROJET BTS 2année

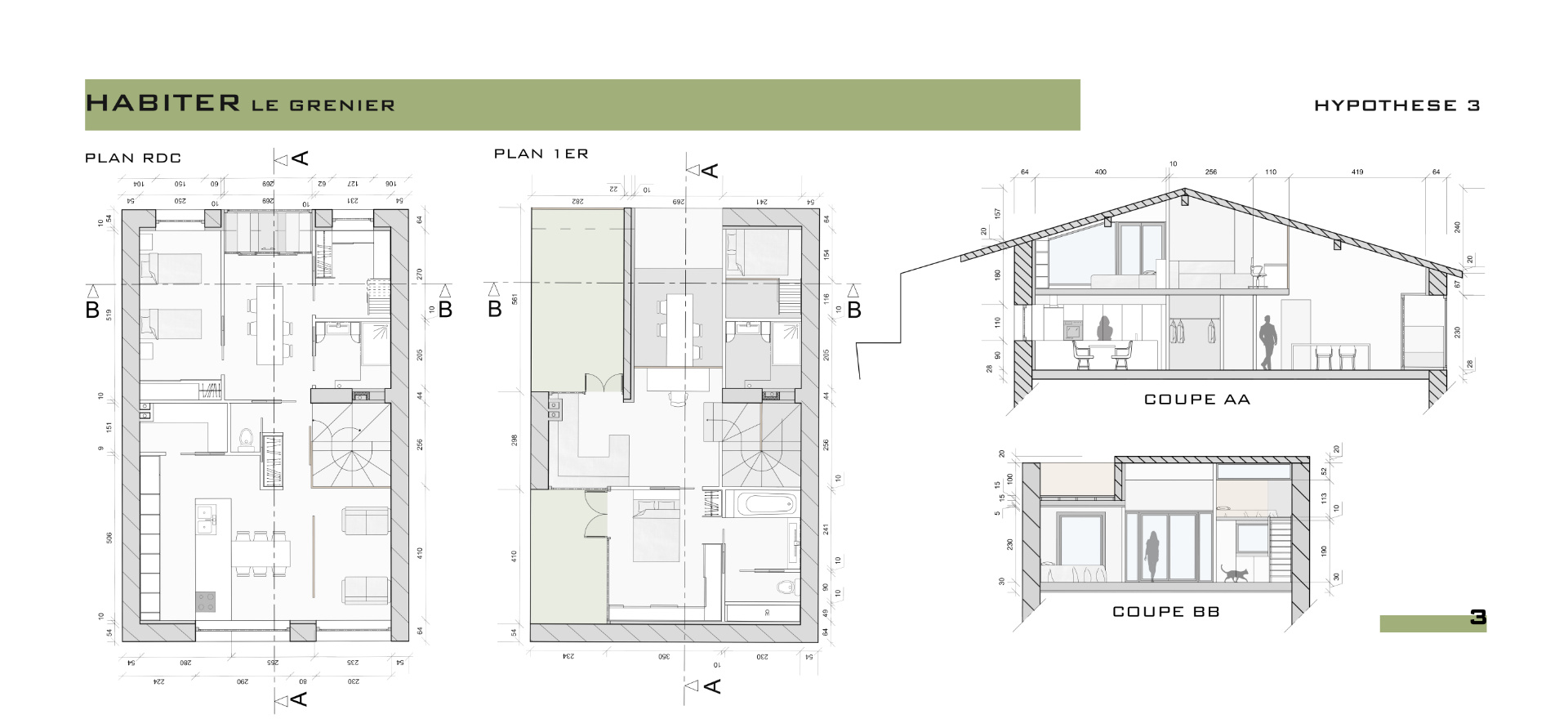
Habiter le grenier

Réaménagement du grenier, d'un immeuble à trois étages dans le village de Verdun-sur-Garonne, en habitation. Le logement étant mitoyen et traversant (Nord-Ouest, Sud-Est) devait accueillir une famille de trois membres permanents (parents et un adolescent) jusqu'à cinq membres occasionnels (deux étudiantes supplémentaires).


Contraintes :

  • Luminosité & accès extérieur
  • Hauteur sous-toiture inégale & basse
  • Promiscuité & densité spatiale


Des espaces d'isolement par les filtres et les percements.
Le regard vers l'extérieur pour cuisiner, manger, se détendre, dormir, se laver, travailler...